Lagerplanung
Wer sich direkt an einen Regalanbieter wendet, wird in der Regel zuerst gefragt, welche Regale er genau benötigt. Für viele ist das eine Überforderung – schließlich sucht man den Kontakt, um Unterstützung und einen passenden Vorschlag zu bekommen.
Deshalb gehen wir bei Paulus-Lager® anders vor: Bevor wir über Regale sprechen, definieren wir gemeinsam mit Ihnen die Prozesse, die Sie in Ihrem Lager tatsächlich brauchen. Genau hier liegt oft der erste Schritt, um die Goldgrube Lager in Ihrem Betrieb freizulegen. Diese klare Grundlage ist entscheidend, damit die spätere Planung sinnvoll und praxisgerecht umgesetzt werden kann.
Erst wenn feststeht, welche Lagerprozesse für Ihren Betrieb notwendig sind, erstellen wir eine darauf abgestimmte Lagerplanung. Das ist Schritt zwei in einem Paulus-Lager®-Projekt. In den meisten Fällen planen wir für unsere Kunden eine Kombination aus Standardlager, Kommissionslager und Prozesslager – immer passend zu den definierten Abläufen und Anforderungen Ihres Betriebs.
So entsteht eine durchdachte Lösung, die im Alltag funktioniert und von den Mitarbeitern gern genutzt wird und dazu beiträgt, die Goldgrube Lager für den Betrieb zu sichern.
Umzug begleiten
Wenn ein Umzug ansteht, bereiten wir diesen sorgfältig mit Ihnen vor. Zunächst erstellen wir eine strukturierte Lagerplanung für die neuen Räumlichkeiten. Auf dieser Basis können Sie die benötigten Regale selbst beschaffen – wir verkaufen keine Regale, nennen Ihnen aber gern geeignete Anbieter. Die Regale stellen Sie dann exakt nach unserer Grundrissplanung auf und räumen Ihr Material eigenständig um.
Während der eigentlichen Umzugswoche begleiten wir Sie nicht vor Ort. In dieser Zeit herrscht erfahrungsgemäß viel Unruhe, und Schulungen würden in diesem Moment kaum Gehör finden. Stattdessen führen wir das Strukturprojekt etwa sechs bis acht Wochen später durch, wenn die Abläufe am neuen Standort zur Ruhe gekommen sind.
In der Projektwoche lagern Ihre Mitarbeiteren unter unserer Anleitung das Material systematisch ein, sodass es anschließend effizient nach unseren Prozessen bewirtschaftet werden kann. Genau hier zeigt sich oft, wie wertvoll die Goldgrube Lager für den Betrieb wirklich ist – gut organisiert und nachhaltig wirksam. In dieser Phase sind Ihre Mitarbeiter auch offen für die notwendigen Schulungen und können das neue System gut aufnehmen.
Wenn Sie Ihren Umzug mit uns vorbereiten möchten, melden Sie sich bitte spätestens drei Monate vor dem geplanten Termin. Die Lieferzeiten für Regale betragen oft mehrere Wochen, und auch wir benötigen etwas Vorlauf für die Terminplanung.
Viele Unternehmer denken noch einen Schritt weiter und melden sich schon vor dem Umzug bei uns. Denn wird der Betrieb bereits vor dem Standortwechsel optimiert, steigt der Umsatz und Gewinn bei gleichbleibender Mitarbeiterzahl. So kann der Neubau oder Umzug oft aus dem höheren Gewinn finanziert werden.
Der zusätzliche Leistungsdruck, dass das Paulus-Lager®-Projekt während des Umzugs unbedingt gelingen muss, entfällt in diesem Fall. Stattdessen wird lediglich eine zweite Lagerplanung für die neue Halle benötigt, basierend auf den bereits optimierten Regalen und Prozessen.
Der Umzug selbst verläuft dann deutlich schneller und reibungsloser: Das Material wird ausgeräumt, die Regale nach der Vorplanung neu aufgestellt und das Material wieder eingeräumt – alles nach einem bekannten System. Ihr Betrieb ist so sehr viel schneller wieder arbeitsfähig, und der Umsatzausfall durch den Umzug bleibt minimal.
Die Erfahrung zeigt: Wer die Goldgrube Lager rechtzeitig erschließt, kann Umzüge entspannter meistern und den wirtschaftlichen Nutzen langfristig sichern.
Prozessbeschreibungen
In jedem unserer Kundenprojekte erstellen wir zu den gemeinsam definierten Lagerprozessen systematische Prozessbeschreibungen.
Wenn Sie Ihren Betrieb weiterentwickeln möchten, ist es notwendig, alle wichtigen Abläufe schriftlich festzuhalten. Das Lager gehört dabei unbedingt dazu – es ist schließlich die Grundlage für Ihre Arbeit. Ohne Material können keine Aufträge abgeschlossen und keine Rechnungen gestellt werden.
Diese ausführliche Prozessdokumentation erhalten Sie von uns im Rahmen des Strukturprojekts bereits fix und fertig ausgehändigt. So sparen Sie sich mindestens zwei Tage eigener Arbeit.
Die Prozessbeschreibungen beinhalten alle wesentlichen Abläufe:
- Dispositionsablauf mit Bestellung
- Warenannahme
- Wareneingangsprüfung
- Kommissionierung
- Einlagerung
- Entnahme
- Baustellenrücklauf und Retoure mit Retourenabwicklung, Restedefinition und Restemanagement
Durch diese klare und detaillierte Dokumentation wird es im Regelbetrieb deutlich einfacher, das Lager dauerhaft zu pflegen und in Ordnung zu halten. Auch die Einarbeitung neuer Mitarbeiter gelingt dadurch strukturiert und zuverlässig.
Für große Betriebe können die Verfahrensanweisungen auf Wunsch auch nach DIN ISO erstellt werden. Diese können zusätzlich erworben werden und unterstützen Sie bei der Einhaltung entsprechender Qualitätsnormen.
Mit systematischen Prozessbeschreibungen sichern Sie die Goldgrube Lager: dokumentiert, effizient und praxisnah – auch nach DIN ISO möglich.
Neue Abteilung „Goldgrube Lager“
In vielen Betrieben ist das Thema „Lager“ eher unerwünscht. Statt die eigentliche Ursache für schlechte Stimmung und Unruhe im Betrieb anzugehen, werden lieber Benefits verteilt, die aber langfristig keine wirkliche Verbesserung bringen. Dabei liegt die Lösung oft direkt vor Augen: das Lager professionell zu organisieren und als feste Größe im Betrieb zu etablieren.
In allen Betrieben, die wir begleiten, wird das Lager – passend zur Betriebsgröße – systematisch als kleine neue, rentable Abteilung aufgebaut. In größeren Betrieben geschieht das auch mit einer klaren Führungsstruktur aus Vorgesetzten und Mitarbeiteren.
Für die neuen Rollen in der Goldgrube Lager erstellen wir eine Stellenbeschreibung und eine Arbeitsplatzbeschreibung, sowohl für den Vorgesetzten als auch für den Lageristen. So wird sichergestellt, dass der Betrieb gesund wachsen kann, ohne dass der Inhaber immer mehr arbeiten muss.
Die Arbeitskraft des Inhabers wird dadurch von der Betriebsgröße entkoppelt. Unsere Paulus-Lager® Prozesse übernehmen die Aufgaben, für die bisher der Inhaber selbst zuständig war. So wird der Betrieb skalierter – und der Inhaber spürt die Entlastung im Alltag.
Paulus-Lager-Akademie
Um neue Mitarbeiter gezielt zu schulen und die Pflege des Lagers langfristig sicherzustellen, empfehlen wir Ihnen, nach der Einführung des Paulus-Lager® Systems die Akademie zu buchen.
Damit Ihre Mitarbeiter regelmäßig nachgeschult werden können, ist es wichtig, dass sie auch langfristig auf dem aktuellen Wissensstand zum Thema „Lager“ bleiben. Viele unserer Kundenbetriebe erleben nach der Projektumsetzung ein spürbares und messbares Umsatzplus. Damit dieser wirtschaftliche Erfolg bestehen bleibt, muss die Goldgrube Lager weiterhin verlässlich gepflegt und die definierten Prozesse korrekt eingehalten werden.
Mit der Zeit verblasst jedoch die Erinnerung an die Schulungsinhalte der Projektwoche, und damit schwindet auch das Wissen über die Lagerprozesse. Gerade in wachsenden Betrieben, in denen neue Mitarbeiter hinzukommen, kann sich unbemerkt wieder das alte Chaos einschleichen. Neue Arbeitsvorbereiter geben oft unbedacht Anweisungen wie „heb mal auf, leg mal weg, vielleicht brauchen wir das noch“ – und unterlaufen damit ungewollt die im Paulus-Lager® System festgelegten Prozesse. Parallel setzen sich schleichend auch die wirtschaftlichen Erfolge zurück.
Damit es gar nicht erst so weit kommt, werden neue Mitarbeiter in der Akademie passend zu ihren Rollen geschult. Die Schulungen sind speziell auf die jeweiligen Aufgaben zugeschnitten – für Werkstattmitarbeiter und Monteure, Arbeitsvorbereiter und Projektleiter sowie für Lageristen. So bleibt die Goldgrube Lager auch bei Wachstum und neuen Teams ein stabiler Erfolgsfaktor.
Zusätzlich bietet die Akademie auch die Möglichkeit, digitale Inspektionen zu buchen und weitere unterstützende Features zu nutzen.
So bleibt Ihr Lager nachhaltig in einem guten Zustand – und der wirtschaftliche Effekt des Systems dauerhaft erhalten.
Digitaler Materialstamm
Ein entscheidender Schritt auf dem Weg zur Digitalisierung im Handwerksbetrieb sind klar definierte Lagerprozesse. Der schwierigste Prozess dabei ist in der Praxis häufig die korrekte Bestellerfassung.
Inmitten von zigtausend Artikeln lässt sich oft nicht zuverlässig erkennen, was tatsächlich fehlt. Die übliche Sichtkontrolle ist dafür nicht geeignet – das Ergebnis sind täglich zahlreiche störende Einzelbestellungen, die meist vom Inhaber oder Projektleiter erledigt werden müssen. So entstehen Überstunden und eine dauerhafte Überlastung der Inhaber, die ihre eigentliche Arbeit oft erst erledigen können, wenn alle anderen schon Feierabend haben – oder am Wochenende. 70-Stunden-Wochen sind keine Seltenheit.
Um diese Überlastung zu vermeiden, setzen wir im Paulus-Lager® auf ein bewährtes System mit Bestellkarten. Jede Karte enthält eine klar definierte MIN- und MAX-Menge sowie eine betriebsinterne Artikelnummer. So wird der Nachschub zuverlässig gesteuert, ohne dass ständig kontrolliert werden muss. Damit erschließen Sie nach und nach die Goldgrube Lager, die bisher ungenutzt im Betrieb schlummert.
Diese Informationen werden in einer hausinternen digitalen Artikelliste in der Lager-EDV hinterlegt. Mit diesem digitalen Materialstamm behält der Einkäufer jederzeit den Überblick über die gebundene Liquidität und kann die Inventur effizient erstellen. Der Projektleiter sieht auf einen Blick, welche Mengen als MIN-Bestand zuverlässig im Lager vorhanden sind.
Auch für die Monteure wird die Arbeit einfacher: Dank der Artikelbeschriftungen am Regal, die direkt aus der digitalen Artikelliste generiert werden, greifen alle Beteiligten auf dieselben Informationen zu. So arbeiten Monteur und Projektleiter Hand in Hand – ohne unnötige Rückfragen und mit einem spürbar entspannteren Ablauf im Alltag. So wird die Goldgrube Lager zu einem verlässlichen Vorteil im Alltag für alle.
Mit einem digitalen Materialstamm heben Sie die Goldgrube Lager: effizient, digital und entlastend für alle Beteiligten.
Lager-EDV
Damit eine Digitalisierung im Lager sinnvoll umgesetzt werden kann, müssen die Lagerprozesse zunächst klar definiert sein. Genau hier liegt oft eine ungenutzte Goldgrube im Lager. Deshalb erarbeiten wir am ersten Tag der Zusammenarbeit gemeinsam mit Ihnen alle Lagerprozesse im Betrieb – vollständig und praxisnah.
In 90 % aller Fälle zeigt sich dabei: Die bereits vorhandenen ERP-Programme, die im Handwerk genutzt werden, sind nicht dafür geeignet, das Lager handwerksgerecht abzubilden. Die programmierten Abläufe passen nicht zu den tatsächlichen Anforderungen im Lager. Aus diesem Grund empfehlen wir in vielen Projekten die bewährte Software unseres Kooperationspartners. Sie verfügt über eine moderne Rest-API-Schnittstelle und wurde bereits erfolgreich an SAP angebunden.
Wenn Ihr bestehendes ERP-System nicht für die Lagerabbildung genutzt werden kann, ist das für die Projektumsetzung kein Problem. Die eingesetzte Software kann ausschließlich „Lager“ – das dafür aber besonders gut. Sie ist einfach und leicht in einer halben Stunde zu erlernen. Selbst ein Azubi im Büro kann damit problemlos rund 4.500 Artikel verwalten. So wird die Goldgrube Lager für Ihren Betrieb erschlossen, ohne dass es kompliziert wird.

Zunächst setzen wir das Paulus-Lager®-Projekt mit der erprobten Software unseres Kooperationspartners um. Schon dadurch wird der Inhaber spürbar entlastet. In vielen Betrieben entfallen dadurch bis zu 30 Stunden Arbeitszeit pro Woche für den Inhaber.

Wenn das Paulus-Lager®-System erfolgreich eingeführt ist und die Prozesse im Alltag verlässlich funktionieren, besteht die Möglichkeit, in einem separaten IT-Projekt zu prüfen, wie Ihr bestehendes ERP-System die Lagerprozesse künftig übernehmen oder angepasst werden kann.

Für die Inventur bietet die Software komfortable Lösungen: Die Daten können jederzeit nach Lagerorten sortiert als CSV-Datei exportiert und ausgedruckt werden. Unterjährig wird der verlässliche Mittelwert zwischen MIN- und MAX-Bestand als „stehende Inventur“ geführt. Zudem berechnet das Programm gleitende Inventurwerte, wenn Artikel im Laufe des Jahres bei verschiedenen Lieferanten beschafft wurden – ein wichtiger Aspekt für größere Betriebe, die regelmäßig geprüft werden.
Die Umsetzung der neuen Lagerprozesse ist unkompliziert, gut nachvollziehbar und so gestaltet, dass sie im Betrieb langfristig durchgehalten werden kann. Die Mitarbeiteren arbeiten gern mit der neuen Struktur, weil sie den Alltag erleichtert – das merkt man auch an der entspannteren Stimmung im Team. Und genau das macht Ihr Lager nachhaltig zu einer Goldgrube, die allen im Betrieb zugutekommt.
Digitale Lagerinspektionen
Damit das eingeführte System dauerhaft wirkt, wird es im kontinuierlichen Regelbetrieb von allen Mitarbeiteren getragen und gepflegt. Regelmäßige Inspektionen sind dabei wichtig, um den guten Zustand der Goldgrube Lager zu sichern. Denn die hohen Kosteneinsparungen bleiben nur so lange bestehen, wie das System verlässlich erhalten wird.
Für die Inspektionen setzen wir auf eine einfache, digitale Lösung: Eine Person aus dem Team geht mit einem Tablet durch das Lager und dokumentiert den aktuellen Pflegezustand. Direkt nach der Projektumsetzung ist diese Inspektion einmal pro Woche sinnvoll, später reicht in der Regel eine monatliche Kontrolle aus.
Die Ergebnisse der digitalen Inspektion werden automatisch per E-Mail an die Monteure, an die Geschäftsleitung und auch an Paulus-Lager übermittelt. So haben alle Beteiligten den Überblick.
Falls eine Inspektion einmal nicht durchgeführt wurde, informieren wir die Geschäftsleitung automatisiert per E-Mail. Das ist eine wichtige Rückmeldung, die im Alltag oft unbemerkt bleiben würde. Die Geschäftsleitung kann dann gezielt nachfragen, warum die Inspektion ausgefallen ist, und sich ein Bild vom aktuellen Zustand der Goldgrube Lager machen.
So bleibt das System nachhaltig wirksam – und der erreichte Qualitäts- und Kostenvorteil langfristig erhalten.
Regelbetrieb und Inspektionen sichern Ihre Goldgrube Lager: nachhaltig, effizient und transparent für alle Beteiligten.
Große Betriebe
Stellen Sie sich einen gewachsenen Handwerksbetrieb vor – mit zahlreichen kompetenten Mitarbeiterinnen und Mitarbeitern sowie einer Geschäftsleitung, die sich im Laufe der Jahre verändert hat. Der alte Chef ist längst im Ruhestand, es gibt eine mehrköpfige, neue Geschäftsführung die sich vor den Gesellschaftern rechtfertigen muß. Jetzt soll ein neues, einfaches Lagersystem kommen. Auf dem Papier klingt das nach einer reinen Organisationsaufgabe.
Doch in der Praxis zeigt sich: Die eigentliche Herausforderung liegt nicht in der Planung, sondern in der sozialen Integration und im Wandel der Arbeitskultur nach dem Projekt. Es ist ein Change-Projekt.
In inhabergeführten, kleineren Betrieben genügt oft die Autorität des Inhabers, um neue Lagersysteme einzuführen. Was der Chef entscheidet, wird akzeptiert, umgesetzt und loyal mitgetragen.
Fehlt die zentrale Leitfigur, ist das anders, weil die persönliche Bindung fehlt, wenn Entscheidungen von mehreren Geschäftsführern getroffen werden. In solchen Unternehmen ist es entscheidend, das wichtige Projekt von Anfang an gemeinsam mit den widerständigen Mitarbeiteren zu entwickeln und umzusetzen. Nur so lassen sich Widerstände abbauen und echte Verbesserungen erreichen.
Für z.B. SHK-Betriebe oder Fensterbaubetriebe mit rund hundert Mitarbeitern ist die Digitalisierung des Materialstamms aufgrund des oft mehrere tausend Artikel umfassen Sortiments ein wertvolles Projektergebnis. Regelmäßig benötigtes Standardmaterial und individuell bestellte Kommissionsware werden intelligent und digital miteinander verzahnt. All das erfordert systematische Prozesse und eine durchdachte Lagerstruktur, die im Projekt entwickelt wird.
Viele große Unternehmen investieren hohe Summen in teure Logistikberatungen. Die Berater analysieren Lagerflächen, erfassen Materialflüsse, organisieren Stuhlkreise mit Kärtchenabfragen, erstellen aufwändige Prozessdiagramme und präsentieren am Ende ein ausgefeiltes Konzept. Doch was passiert danach? Die Umsetzung bleibt meist beim Betrieb selbst hängen und die Berater sind verschwunden bevor sie bewiesen haben, dass ihr Konzept funktioniert.
Regale werden bestellt und aufgebaut, Prozesse werden auf dem Papier eingeführt – aber im Alltag läuft alles wie zuvor.
Die kompetenten Mitarbeiter, die das neue System täglich nutzen sollen, wurden in aller Regel nicht einbezogen. Sie verstehen die neuen Abläufe nicht, fühlen sich übergangen und entwickeln Widerstand. Das Ergebnis: Das Lager bleibt ein Dauerproblem, die Investition verpufft.
Ein Grund ist, weil die üblichen Lagerstrategien FIFO (First In First Out), LIFO (Last In, First Out), FEFO (First Expired, First Out), HIFO (Highest In, First Out), LOFO (Lowest In, First Out) und dynamische (chaotische) Lagerhaltung mit EDV-Unterstützung im Handwerk nutzlos sind. Sie sind für Industrie und Handel entwickelt und haben den falschen Fokus.
Zurück bleibt eine verunsicherte Geschäftsführung mit einem gescheiterten Projekt und gekränkte Monteure, die gelernt haben, ein Projekt zu boykottieren.
Anders ist es wenn ein Paulus-Lager® System eingeführt wird: das System ist skalierbar und bildet auch die Bedürfnisse großer Betriebe mit ab.
Ein erfolgreicher Neustart gelingt mit dem Erstellen der erprobten Projektcharta. In einem Workshop mit Geschäftsführung, Lageristen, Projektleitern, Werkstattmitarbeitern und Monteuren werden Ziele, Anforderungen, Risiken und Meilensteine des Lagerprojekts gemeinsam festgelegt. Auch der Kummer, der vom Lager Betroffenen wird deutlich.
Diese bewährte Charta schafft Transparenz, fördert die Akzeptanz und gibt dem Projektleiter die nötige Rückendeckung. Sie ist wird allen Mitarbeiteren zugänglich gemacht und öffentlich ausgehängt. So wissen vom Geschäftsführer bis zur Verwaltungskraft alle, die mit dem Lager arbeiten werden, worum es geht, warum das Projekt durchgeführt wird und was von ihnen erwartet wird. Die Anwesenheit der Wortführer unter den Mitarbeitern, die dagegen sind, ist entscheidend. Oft tragen sie die Begeisterung für das neue Lagerprojekt nach der Ausarbeitung der Projektcharta in die Belegschaft.
Weil die meisten ERP Programme die Prozesse im Lager nicht abbilden können, ist ein begleitendes IT- Projekt in großen Betrieben der Standard. Ziel ist, dass die physikalischen Lagerprozesse und die digitale Lagerverwaltung sinnvoll mit dem vorhandenen digitalen ERP-System kommuniziert. Die Einbindung eines Schnittstellen-Spezialisten zahlt sich hier aus, der von uns empfohlen wurde.
Die funktionierende PAULA-Strategie wird für die Umsetzung verwendet.
Siehe Definition der PAULA-Lagerstrategie (Link hinterlegen)
Der Unterschied zu klassischen Beratungsprojekten liegt im Vorgehen: Auf das Bauhandwerk spezialisierte Experten bringen alle Lagerprozesse als fertigen Vorschlag mit. Die übliche aufwendige Analyse minimiert sich aufgrund des vorhandenen fundierten Wissens. Die folgenden Schritte werden bei der Umsetzung auf den jeweiligen Betrieb abgestimmt.

Prozessdefinition: Am ersten Projekttag werden gemeinsam mit Geschäftsführung und Führungsebenedie strukturierten Lager- und Arbeitsvorbereitungsprozesse neu festgelegt. Am zweiten Tag werden die Projektleiter einbezogen, da der Materialfluss bei ihnen auf ihrem Tisch mit der Bestellung beginnt. Die anschließende Hausaufgabe ist die Erstellung einer betriebseigenen Artikelliste, deren Erfassung auf mehrere Personen verteilt wird. Eine spezielle Lager-Software wird dafür eingesetzt, wenn das hauseigene ERP-System nicht funktioniert.

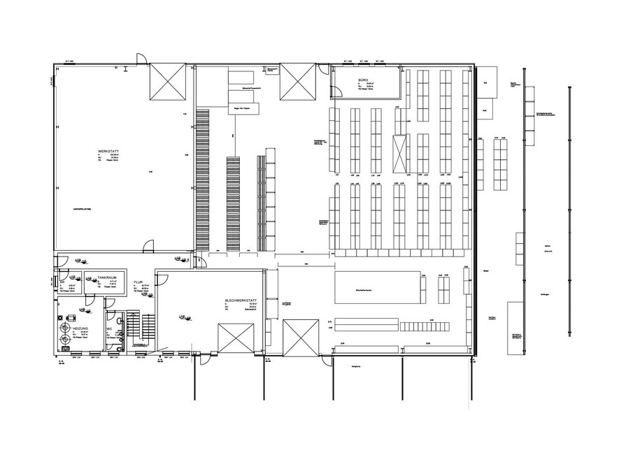
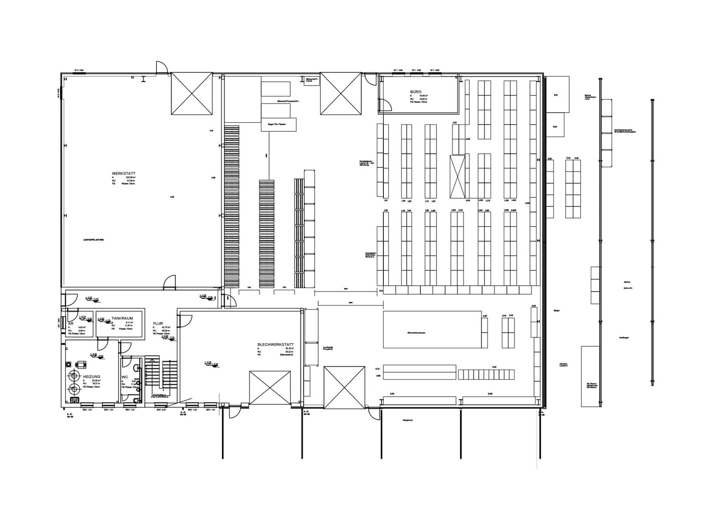
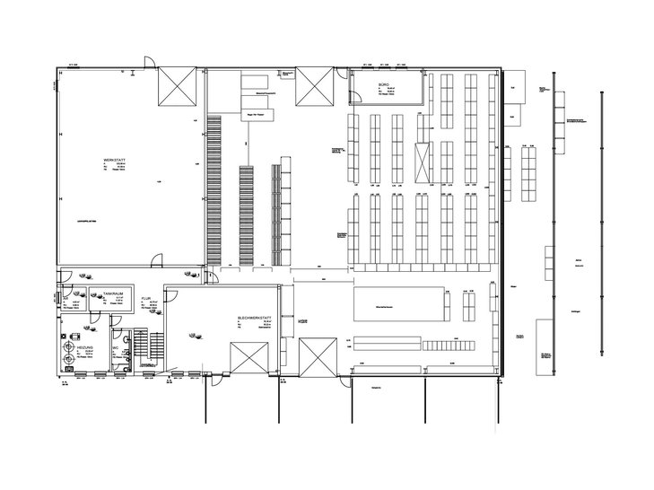
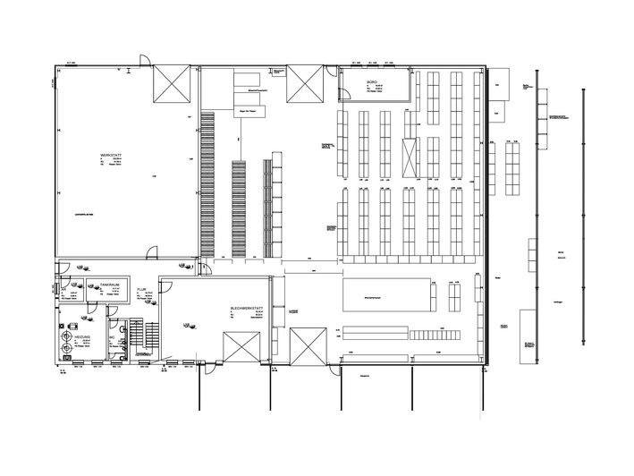
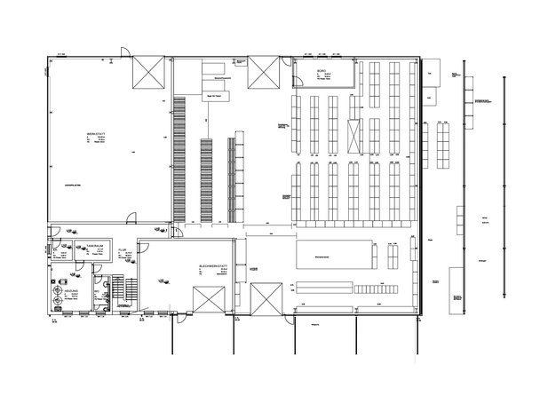
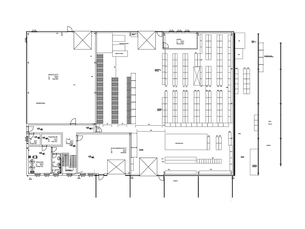
Lagerplanung: Eine effiziente Regalaufstellung unter Nutzung vorhandener Regale wird geplant – oft auf mehreren tausend Quadratmetern. Standardisierte Lagerarten werden nach Effizienz in den Grundriss eingeplant. Die für das Strukturprojekt benötigten Mitarbeiter werden namentlich festgelegt.

Strukturprojekt: Viele Mitarbeiter helfen, die Artikel methodisch neu einzuräumen und digital zu erfassen. Je nach Größe, z.B. bei zwei Hallen, kann es mehrere Strukturprojekte geben. Die Artikelliste wird durch das Know-how der Belegschaft ergänzt. Meist sind nicht alle Mitarbeiter im Projekt eingesetzt. Für nicht direkt Beteiligte gibt es einen Schulungsplan.

Lagerpflege: Verantwortliche für die Lagerpflege werden benannt und deren Aufgaben Alle Lagerprozesse werden dokumentiert. Eine digitale Kontrolle und passende Verfahrensanweisungen werden eingeführt, auf Wunsch zusätzlich nach DIN ISO. Im Regelbetrieb wird erst wöchentlich nach dem Projekt, dann monatlich eine Inspektion des Lagers digital ausgeführt und das Ergebnis an alle Mitarbeiter und die Geschäftsführung in CC per E-Mail verschickt. Wird sie nicht durchgeführt wird dies per E-Mail automatisch an die Geschäftsführung eskaliert.
Normal würde es die Geschäftsführung nicht merken, dass die Lagerinspektion nicht durchgeführt wurde. In diesem Fall hat sie die Aufgabe, herauszufinden, warum die Inspektion nicht stattfindet, und kann den Fall abstellen.
Auch dieses System gibt es nicht zum Nulltarif. Aber nach unserer Erfahrung entstehen im Ergebnis mehrere Millionen Euro zusätzlicher Umsatz – pro Jahr.
Diese Zusatzumsätze werden jährlich erhalten bleiben, solange die spezielle Lagerstruktur aufrechterhalten wird. Die Millionengewinne entstehen durch den Wegfall der Wege ins Lager durch die Projektleiter, die dann Umsatz planen, der Einkauf reduziert sich weil alles wiedergefunden wird, gebundene hohe 5-6-stellige Liquidität baut sich auf dem Konto auf, weil das Material im Lager endlich abverkauft wird.
Weil es mit diesem System keine Suchzeiten in der Werkstatt und bei den Monteuren mehr gibt, schnellt der Umsatz um 20-30% hoch. Kann der Umsatz nicht erhöht werden, werden die Kosten im gleichen Maße gesenkt. Die gemeinsam erreichte Optimierung wirkt sich direkt auf Umsatz, Gewinn und Wettbewerbsfähigkeit aus.
Die Einführung eines neuen Lagersystems in großen Betrieben sollte mehr sein als ein technisches und planerisches Projekt. Gebraucht wird ein Veränderungsprozess, der die Werkstattmitarbeiter und Monteure im Betrieb in den Mittelpunkt stellt. Erst wenn Werkstatt, Monteure, Führungskräfte und Geschäftsleitung gemeinsam an einem Strang ziehen, entstehen nachhaltige Verbesserungen. Systematische Strukturen, transparente Kommunikation und praxistaugliche Lösungen sind der Schlüssel zum Erfolg. Wer die sozialen Faktoren ernst nimmt und auf die Erfahrung der Mitarbeiter setzt, kann aus einem Lagerprojekt einen unschlagbaren Wettbewerbsvorteil machen.
Kosten senken
In jedem Handwerksbetrieb steckt eine bisher unbekannte Goldgrube: das Lager.
Mit dem Paulus-Lager® System erschließen Sie dieses Potenzial Schritt für Schritt – und entlasten Ihren Betrieb spürbar: Rund 30-40 Stunden Freizeit pro Woche für Inhaber und Führungskräfte, und in nur sechs Monaten sinken die Kosten um rund 30 %.
Alle unten aufgeführten Symptome zeigen: Die Goldgrube in Ihrem Betrieb wird im Moment nicht genutzt. Stattdessen geht wertvolle Liquidität verloren, und Ihre Mitarbeiter werden im Alltag ausgebremst.
Ihre Mitarbeiter werden es Ihnen danken. Denn was sie sich wirklich wünschen, ist Unterstützung bei der Arbeit – nicht den 93. Apfel im Obstkorb.
- Symptom: Scannen am Regal: Projektleiter und Monteure kontrollieren das Lager per Sichtkontrolle. Beschriftet sind nur ca. 300 Artikel – ohne Mengen. Niemand hat definiert, welche Materialien in welchen Mengen vorgehalten werden. Es wird willkürlich bestellt, die Liquidität steckt im Lager, der Platz reicht nicht aus, Material steht im Weg.
- Lösung: Wird durch Prozesse ersetzt. So sparen Sie sich tausende unbeschriftete Artikel zu prüfen – eine wichtige Effizienzsteigerung in Zeiten knapper Fachkräfte.
-
Symptom: Täglich fehlen Kleinteile, obwohl gescannt wird. Der Betrieb steht still. Chef und Projektleiter müssen eingreifen, kommen mit ihrer eigenen Arbeit nicht hinterher, Überstunden häufen sich.
-
Lösung: Wird durch Prozesse ersetzt. Das Lager liefert zuverlässig, die Führungskräfte können ihre eigentliche Arbeit erledigen.
-
Symptom: Sichtkontrolle im Lager bei ca. 10.000 unbeschrifteten Artikeln. Niemand kennt Mengen oder definiertes Material. Die Liquidität steckt im Lager, Material liegt ungenutzt herum.
-
Lösung: Wird durch Prozesse ersetzt. Eine nachhaltige Entlastung für alle Beteiligten.
- Symptom: Die BWA sieht gut aus, trotzdem fehlt am Monatsende Liquidität.
-
Lösung: Wird durch Prozesse ersetzt. Materialreste fließen zurück in den Produktionsprozess, werden wieder genutzt oder verkauft – Liquidität baut sich auf.
- Symptom: Der Projektleiter rennt ins Lager, um nachzusehen, was da ist, bestellt den Rest – und wenn der Auftrag starten soll, fehlt Material.
-
Lösung: Wird durch Prozesse ersetzt. Im Rechner ist jederzeit verlässlich ersichtlich, was verfügbar ist.
- Symptom: Verwaltungskraft will eine Rechnung schreiben, versteht Materialbegriffe nicht, ruft den Monteur an, dann den Chef – und alle verlieren Zeit.
-
Lösung: Wird durch den digitalen Materialstamm ersetzt. Keine Mehrfach-Begriffe mehr, keine Nachfragen. Die Artikelliste zeigt klar, was bewirtschaftet wird. Rechnungen werden direkt vom Mobilen Monteur erstellt.
- Symptom: Mitarbeiter fahren zum Großhandel, kommen zu spät zurück, die Stimmung ist schlecht.
- Lösung: Wird durch Prozesse ersetzt. Nur im Notdienst noch erforderlich – und dann sind alle froh, dass es schnell klappt.
- Symptom: Projektleiter kaufen Kleinteile und Standardmaterial, anstatt Umsatz zu planen.
-
Lösung: Wird durch Prozesse ersetzt.
- Symptom: Chef oder Projektleiter stehen selbst an der Warenannahme, packen Material aus und geben es an die Monteure.
-
Lösung: Wird durch Prozesse ersetzt.
- Symptom: Chefs und Projektleiter bestellen abends von der Couch über die Lieferanten-App.
- Lösung: Entfällt. Sie sind tagsüber entlastet und schaffen Ihre Arbeit in der regulären Arbeitszeit.
- Symptom: Projektleiter erledigen langwierige Retourenabwicklungen.
-
Lösung: Wird durch Prozesse ersetzt.
- Symptom: Mitarbeiter suchen an mehreren Stellen gleichzeitig nach einem Teil.
- Lösung: Entfällt. Jedes Teil hat genau einen beschrifteten Platz.
Heben Sie jetzt die Goldgrube Lager – für ein Lager, das Sie und Ihr Team nachhaltig entlastet.